Villa singola in vendita

Imperia, Strada del Colle - Poggi Inferiore Poggi Superiore
€ 1.100.000
11 locali 11 locali
327 Mq 327 Mq
4 bagni 4 bagni

Villa singola in vendita

Imperia, Strada del Colle - Poggi Inferiore Poggi Superiore

Descrizione annuncio

Villa Rosa – Villa con piscina e vista mare panoramica in vendita a Imperia

Sulle prime colline alle spalle di Imperia, immersa nella quiete degli uliveti liguri, sorge Villa Rosa, una splendida proprietà caratterizzata da grande eleganza, comfort moderni e da una straordinaria vista panoramica sul mare.

La villa è circondata da un curato parco privato con numerose piante di ulivo e offre diversi spazi dedicati al relax all’aperto, tra cui una spettacolare piscina panoramica con vista aperta a 180° sul mare e sulla costa ligure.

L’ingresso alla proprietà è privato, e gli spazi esterni sono pensati per godere appieno della tranquillità e del panorama circostante. Completano la proprietà un ampio garage e diversi posti auto.

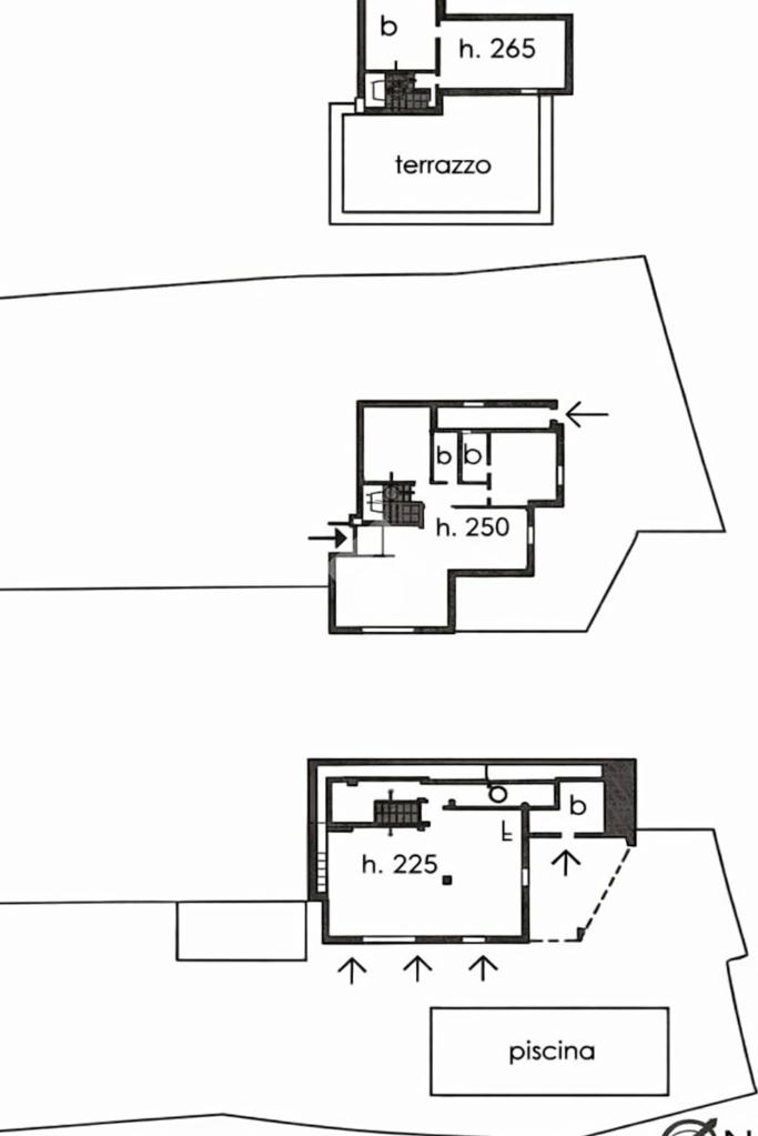
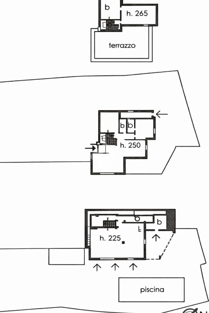
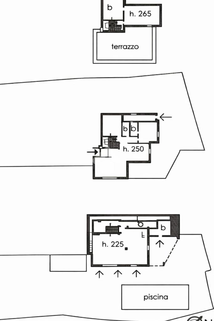
Distribuita su tre livelli, la villa è rifinita con materiali di pregio, con pavimentazione in marmo nelle zone giorno in alternanza al parquet nelle zone notte. Gli ambienti sono stati curati con particolare attenzione in fase di progettazione per armonizzare gli spazi interni con l’ambiente esterno, valorizzando la luminosità naturale e la vista mare che caratterizza la proprietà.

Il piano terra, collegato direttamente alla zona piscina, ospita un grande open space con cucina, zona pranzo e area living, oltre a bagno e ripostiglio.

Al piano intermedio si trova un’elegante zona giorno con area divani e zona colazione, una camera con bagno privato, una seconda camera da letto e un ulteriore bagno. Da questo livello si accede anche a un ampio terrazzo laterale.

Il piano superiore è dedicato alla suite padronale, dotata di sala da bagno privata e accesso a un grande terrazzo panoramico con vista mare mozzafiato.

La proprietà è inoltre dotata di impianto fotovoltaico, che rende in buona parte indipendenti il riscaldamento, il condizionamento e la produzione di acqua calda, garantendo efficienza energetica e sostenibilità.

Mostra tutto

Nelle vicinanze

Trasporto pubblico Trasporto pubblico
Trasporto pubblico
250 m
San Lorenzo al Mare
San Lorenzo al Mare
2,2 Km
Ricariche auto elettriche Ricariche auto elettriche
SIPROTEC / S.LORENZO AL M.
2,2 Km
EnelX EVA+ Conad Imperia
2,5 Km
Scuole Scuole
Polo universitario di Imperia
2,5 Km
Farmacia Farmacia
Farmacia
2,1 Km
Farmacia di Civezza
2,1 Km
Parafarmacia Conad
2,5 Km
Farmacia Massabo'
2,9 Km
Supermercati Supermercati
Penny market
1,3 Km
Supermercati
1,3 Km
Pam
2,0 Km
PAM - Supermercato
2,0 Km
Margherita
2,2 Km
Negozi Negozi
Negozi
430 m
Alimentari Fulvio e Daniela
2,3 Km
Panificio Bracco
2,3 Km
Panificio S. Antonio
2,3 Km
Calzature Lena
2,3 Km
Bar Bar
Bar
430 m
Bar Dei Piscatori
2,2 Km
Peter Pan
2,3 Km
Gelateria La playa
2,4 Km
Emy bar
2,4 Km
Ristoranti Ristoranti
Ristoranti
440 m
Amelia
890 m
Pizzeria Ristorante Le Vele
1,7 Km
Bar Pizzeria Pepe Nero
1,9 Km
La mela verde
2,0 Km
Mostra tutto

Caratteristiche

Rif.:
61189678
Piano:
3 di 3 (Piano su più livelli)
Box:
1
Posti auto:
3
Terrazzi:
2
Camere da letto:
3
Mostra tutto
Prezzo Prezzo
€ 1.100.000
Rata mutuo Rata mutuo
€ 5.185 / mese
Spese annue Spese annue
€ 0
Proponi il tuo prezzoProponi il tuo prezzo

Classe Energetica

D
D
D
D
D
D
D
D
D
EP globale non rinnovabile:
101.42 kW h/m² anno
EP globale rinnovabile:
0.00 kW h/m² anno
EP invernale del fabbricato:
EP estiva del fabbricato:
Anno di costruzione:
1990
Riscaldamento:
Autonomo
Tipo impianto:
A radiatori
Tipo alimentazione:
Pannelli

Ti interessa visionare l'immobile?

Fissa un appuntamento  Fissa un appuntamento

Richiedi informazioni

Clicca su Leggi per aprire l'informativa
* Questi campi sono obbligatori

Calcola il tuo mutuo

Semplice e senza impegno
Anticipo

( % )
Mutuo

( % )

pochi semplici passi

inserisci i tuoi dati
Questionario completato
Grazie per aver richiesto un appuntamento senza impegno con un nostro Consulente del Credito e Assicurativo.

Hai inserito correttamente tutti i dati necessari e a breve riceverai una e-mail con un link da convalidare per inviare i tuoi dati.
Affiliato
Studio San Lorenzo Sas
Via Aurelia, 29 18017 San Lorenzo Al Mare (IM)

Il nostro staff


  • Ivo Floccia
    Affiliato

  • Giorgia Vivace
    Coordinatrice

  • Luca Ciccione
    Collaboratore

  • Matteo Fagiolino
    Collaboratore
Via Aurelia, 29 18017 San Lorenzo Al Mare (IM)
Zona: San Lorenzo al Mare - Cipressa - Civezza - Costarainera e Vallata
Mostra su mappa
Orari: dal lunedi al venerdi 9:00 - 12:30 e 15:00 - 19:30; sabato 9:00 - 12:30 e 15:00 - 19:00; domenica su appuntamento.
Affiliato
Studio San Lorenzo Sas
Via Aurelia, 29 18017 San Lorenzo Al Mare (IM)

2026 Tecnocasa Franchising S.p.A. - P. IVA 08365160152 - Via Monte Bianco 60/A 20089 Rozzano (MI). Ogni agenzia ha un proprio titolare ed è autonoma. Privacy policy | Policy utilizzo | Cookie policy