Rustico in vendita

Pietrabruna, Via XXV aprile - Boscomare
€ 75.000
7 locali 7 locali
110 Mq 110 Mq
1 bagno 1 bagno

Rustico in vendita

Pietrabruna, Via XXV aprile - Boscomare

Descrizione annuncio

Casa indipendente “terra-cielo” nel borgo di Boscomare

Nel suggestivo borgo storico di Boscomare, immerso negli ulivi della Valle di San Lorenzo e a soli 15 minuti dalle spiagge di San Lorenzo al Mare e dalla pista ciclabile, proponiamo in vendita una tipica casa ligure indipendente, comoda al parcheggio pubblico del paese.

La proprietà, disposta su più livelli, conserva ancora il fascino autentico delle abitazioni di una volta, grazie ai pavimenti originali in ardesia e in cotto presenti in alcuni ambienti.

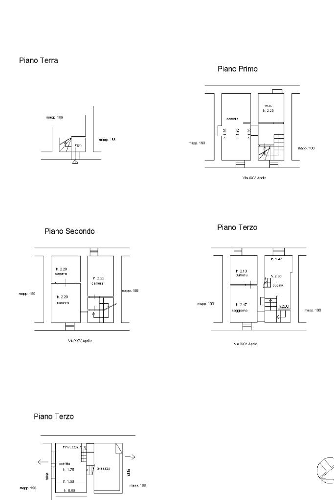
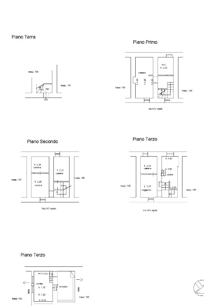
Piano terra: ingresso indipendente.

Piano primo: ampia camera da letto matrimoniale e bagno con doccia.

Piano secondo: due camere da letto, di cui una particolarmente spaziosa.

Piano terzo: zona giorno composta da soggiorno e cucina, con accesso alla soffitta luminosa grazie alle finestre presenti, da cui si raggiunge la terrazza panoramica.

Dalla terrazza si gode una splendida vista aperta sul borgo e sulla vallata circostante, ideale per momenti di relax all’aperto.

La casa necessita di alcuni lavori di ammodernamento, ma rappresenta una soluzione autentica e senza spese condominiali, perfetta come casa vacanze in un borgo caratteristico dell’entroterra ligure.

Per ulteriori informazioni e fissare una visita ci trovate allo 018391313 o tramite Whatsapp al 3701301370.

Mostra tutto

Nelle vicinanze

Trasporto pubblico Trasporto pubblico
Pietrabruna
Pietrabruna
1,3 Km
Trasporto pubblico
2,3 Km
Farmacia Farmacia
Farmacia
1,2 Km
Bar Bar
Trattoria I cacciatori
1,3 Km
Bar
2,4 Km
Ristoranti Ristoranti
The Wolf's Den da Vittorio
2,3 Km
Ristoranti
2,4 Km
Mostra tutto

Caratteristiche

Rif.:
61114146
Piano:
1 di 4 (Piano su più livelli)
Terrazzi:
1
Camere da letto:
3
Arredamento:
Parziale
Condizionamento:
Assente
Mostra tutto
Prezzo Prezzo
€ 75.000
Rata mutuo Rata mutuo
€ 354 / mese
Spese annue Spese annue
€ 0
Proponi il tuo prezzoProponi il tuo prezzo

Classe Energetica

G
G
G
G
G
G
G
G
G
EP globale non rinnovabile:
125.55 kW h/m² anno
EP globale rinnovabile:
0.00 kW h/m² anno
EP invernale del fabbricato:
EP estiva del fabbricato:
Anno di costruzione:
1700
Riscaldamento:
Assente

Ti interessa visionare l'immobile?

Fissa un appuntamento  Fissa un appuntamento

Richiedi informazioni

Clicca su Leggi per aprire l'informativa
* Questi campi sono obbligatori

Calcola il tuo mutuo

Semplice e senza impegno
Anticipo

( % )
Mutuo

( % )

pochi semplici passi

inserisci i tuoi dati
Questionario completato
Grazie per aver richiesto un appuntamento senza impegno con un nostro Consulente del Credito e Assicurativo.

Hai inserito correttamente tutti i dati necessari e a breve riceverai una e-mail con un link da convalidare per inviare i tuoi dati.
Affiliato
Studio San Lorenzo Sas
Via Aurelia, 29 18017 San Lorenzo Al Mare (IM)

Il nostro staff


  • Ivo Floccia
    Affiliato

  • Giorgia Vivace
    Coordinatrice

  • Luca Ciccione
    Collaboratore

  • Matteo Fagiolino
    Collaboratore
Via Aurelia, 29 18017 San Lorenzo Al Mare (IM)
Zona: San Lorenzo al Mare - Cipressa - Civezza - Costarainera e Vallata
Mostra su mappa
Orari: dal lunedi al venerdi 9:00 - 12:30 e 15:00 - 19:30; sabato 9:00 - 12:30 e 15:00 - 19:00; domenica su appuntamento.
Affiliato
Studio San Lorenzo Sas
Via Aurelia, 29 18017 San Lorenzo Al Mare (IM)

2025 Tecnocasa Franchising S.p.A. - P. IVA 08365160152 - Via Monte Bianco 60/A 20089 Rozzano (MI). Ogni agenzia ha un proprio titolare ed è autonoma. Privacy policy | Policy utilizzo | Cookie policy