Quadrilocale in vendita

San Lorenzo Al Mare, Via della chiesa
€ 385.000
4 locali 4 locali
75 Mq 75 Mq
1 bagno 1 bagno

Quadrilocale in vendita

San Lorenzo Al Mare, Via della chiesa

Descrizione annuncio

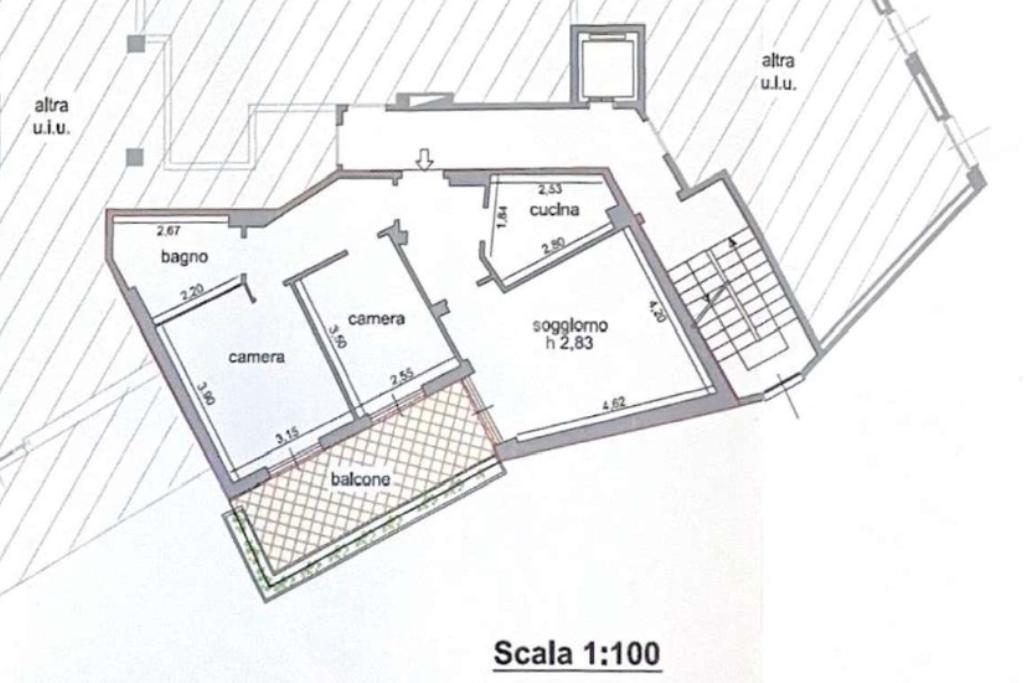
Appartamento fronte mare con terrazzo e garage a San Lorenzo al mare.

All’interno di un elegante condominio affacciato direttamente sulla spiaggia, dotato di due piscine di acqua salata, ampia zona solarium e servizio di portineria, proponiamo in vendita un appartamento al terzo piano servito da ascensore.

L’ingresso accoglie in uno spazio ampio e funzionale, che conduce alla cucina e al soggiorno luminoso, con accesso diretto al terrazzo vivibile, ideale per pranzi e cene all’aperto con splendida vista sul mare e sul curato giardino condominiale.

La zona notte è composta da una camera matrimoniale e da una seconda camera, entrambe con uscita sul terrazzo, e da un bagno con vasca.

L’alloggio, da riordinare, offre la possibilità di essere personalizzato secondo il proprio gusto ed esigenze. La palazzina invece è stata oggetto di ristrutturazione sia esterna che interna, e si presenta quindi in ottime condizioni.

Il valore aggiunto della proprietà è rappresentato dal grande terrazzo, vero punto di forza, e dal comodo garage situato proprio sotto la palazzina.

Una soluzione unica per chi desidera vivere il mare in un contesto esclusivo e riservato, con tutti i comfort a portata di mano.

Mostra tutto

Nelle vicinanze

Trasporto pubblico Trasporto pubblico
San Lorenzo al Mare
San Lorenzo al Mare
80 m
Trasporto pubblico
470 m
Ricariche auto elettriche Ricariche auto elettriche
SIPROTEC / S.LORENZO AL M.
50 m
Scuole Scuole
Scuola elementare di Cipressa
2,5 Km
Farmacia Farmacia
Farmacia
180 m
Farmacia Cipressa
2,7 Km
Ospedali Ospedali
Ospedale
1,0 Km
Supermercati Supermercati
Margherita
250 m
Supermercati
980 m
Negozi Negozi
Calzature Lena
80 m
Panificio Bracco
90 m
Alimentari Fulvio e Daniela
100 m
Negozi
220 m
Rina
2,8 Km
Bar Bar
Peter Pan
60 m
Gelateria La playa
120 m
Bar Dei Piscatori
130 m
Emy bar
130 m
U nostromu
170 m
Ristoranti Ristoranti
Pizzeria 'O Sarracin
80 m
Antica piazzetta
100 m
Don Pasquale
100 m
Spaghetteria Il Gabbiano
110 m
Il veliero
370 m
Mostra tutto

Caratteristiche

Rif.:
61114753
Piano:
3 di 5 con ascensore (Piano medio)
Box:
1
Terrazzi:
1
Camere da letto:
2
Arredamento:
Parziale
Mostra tutto
Prezzo Prezzo
€ 385.000
Rata mutuo Rata mutuo
€ 1.814 / mese
Spese annue Spese annue
€ 3.000
Proponi il tuo prezzoProponi il tuo prezzo

Classe Energetica

G
G
G
G
G
G
G
G
G
EP globale non rinnovabile:
163.59 kW h/m² anno
EP globale rinnovabile:
8.73 kW h/m² anno
EP invernale del fabbricato:
EP estiva del fabbricato:
Anno di costruzione:
1967
Riscaldamento:
Centralizzato
Tipo impianto:
A radiatori
Tipo alimentazione:
Metano

Ti interessa visionare l'immobile?

Fissa un appuntamento  Fissa un appuntamento

Richiedi informazioni

Clicca su Leggi per aprire l'informativa
* Questi campi sono obbligatori

Calcola il tuo mutuo

Semplice e senza impegno
Anticipo

( % )
Mutuo

( % )

pochi semplici passi

inserisci i tuoi dati
Questionario completato
Grazie per aver richiesto un appuntamento senza impegno con un nostro Consulente del Credito e Assicurativo.

Hai inserito correttamente tutti i dati necessari e a breve riceverai una e-mail con un link da convalidare per inviare i tuoi dati.
Affiliato
Studio San Lorenzo Sas
Via Aurelia, 29 18017 San Lorenzo Al Mare (IM)

Il nostro staff


  • Ivo Floccia
    Affiliato

  • Giorgia Vivace
    Coordinatrice

  • Luca Ciccione
    Collaboratore

  • Matteo Fagiolino
    Collaboratore
Via Aurelia, 29 18017 San Lorenzo Al Mare (IM)
Zona: San Lorenzo al Mare - Cipressa - Civezza - Costarainera e Vallata
Mostra su mappa
Orari: dal lunedi al venerdi 9:00 - 12:30 e 15:00 - 19:30; sabato 9:00 - 12:30 e 15:00 - 19:00; domenica su appuntamento.
Affiliato
Studio San Lorenzo Sas
Via Aurelia, 29 18017 San Lorenzo Al Mare (IM)

2026 Tecnocasa Franchising S.p.A. - P. IVA 08365160152 - Via Monte Bianco 60/A 20089 Rozzano (MI). Ogni agenzia ha un proprio titolare ed è autonoma. Privacy policy | Policy utilizzo | Cookie policy